

【建築構造設計必知的100個節點】
編輯推薦
本書是一部詳盡的建築構造施工節點科技工具書,與以往的圖集相比,本書的特點是直擊建築構造設計痛點。 集結了近年來已經完成的眾多經典工程項目中精彩的144個建築設計施工圖常用節點,以CAD圖、3D圖、文字說明形式呈現在讀者面前。
建築構造設計中有很多細節設計,在整體設計中佔有很重要的位置,而節點設計是反映建築細節的一個重要部分。 節點設計是指對某個局部構造進行詳細的描繪及說明,一般以節點圖的形式來體現。 節點圖不但要表達設計師對裝潢形式細節的要求,同時,它也是內部構造做法、工藝、資料以及實施科技的直接表達和體現。 節點設計是否到位,將直接影響項目的外觀效果、施工品質和工程造價。
內容簡介
本書將建築設計涉及的各重要部位的平面圖、立面圖、詳圖和三維示意圖對照來講述各構造節點的做法,讓讀者很直觀地學習節點的構造知識,包括地基、基礎、牆體、樓板、地坪、陽臺、雨篷、樓梯、臺階與坡道、門窗、屋頂、變形縫、建築防火、建築防震、建築防潮、建築防水、建築聲學、 建築節能、建築裝修、建築幕牆、天窗、輕型結構、人防工程等建築構造節點。
作者簡介
吳放:天津大學建築設計規劃研究總院總建築師,研究員,國家一級註冊建築師。 中國勘察設計協會傳統建築分會專家委員會專家,天津市施工圖科技審查委員會專家,天津大學建築學院研究生企業導師。 歷年來,作為專案負責人設計的各類建築設計項目獲得全國優秀工程勘察設計獎等省部級以上優秀設計獎項近30項。
高向鵬山東城市建設職業學院教師,國家一級註冊建築師,先後從事建築設計一線工作與相關專業教學工作多年。
目錄
5牆體細部構造節點
23樓板、陽臺與雨篷構造節點
43樓梯細部構造節點
67門窗構造節點
85屋頂構造節點
115變形縫節點設計
131建築結構抗震概念節點設計
145建築物的防水、防潮構造節點
155建築保溫隔熱節點設計
171建築幕牆構造節點
209建築工業化
241地下人防工程構造設計
書摘插畫









-------------------------------------------------------

【室內設計師必知的100個節點】
內容簡介
本書是由一批在國內的建築裝飾設計施工企業、高等院校中長期從事室內設計施工圖理論技術研發及實踐的專家編寫而成的,書中內容集結了專家團隊近年來已經完成的眾多經典工程項目中精彩的188個室內設計施工圖常用節點,以CAD圖、3D圖、文字說明形式呈現在讀者面前,與時俱進、簡單實用、 立竿見影。 希望對能在校室內設計專業的學生和建築裝飾設計施工企業的設計師有所啟發和幫助。
在中國經濟發展進入新常態,建築裝飾設計領域轉型陞級的大背景下,由北京市建築裝飾協會、北京建築裝飾設計創新產業聯盟及北京超限建築科技發展有限公司聯合策劃編寫的《室內設計師必知的100個節點》一書的問世如三月的一縷春風迎面撲來。
伴隨著改革開放,中國建築裝飾行業經過三十餘年迅猛發展,已成為從業人員數千萬、年產值數萬億元的國民經濟支柱產業之一。 作為建築裝飾的一部分,建築裝飾設計版塊從小到大、由弱變强,湧現了一批知名企業和設計師,創造了眾多的精品項目,獲得無數國內外大獎,從某種意義上講,設計正在影響和改變著中國。
在巨大的成就面前,我們還要看到存在問題的方方面面,諸如建築裝飾設計的教育體系,建築裝飾設計中的科技管理,設計流程中施工圖的比重等,它們存在的不足嚴重地影響了建築設計版塊的健康發展。
發現問題、面對問題、解决問題,我想這也是本書的策劃者、編寫者出版這本書的初心。 由於工作關係,我與他們大部分都很熟悉。 我高興地看到,經過這些專業“老炮們”的辛勤勞動,今天呈現在我們面前的是近年難得一見,非常實用的一部建築裝飾設計施工圖科技方面的上乘之作。 本書對未來也具有一定的指導意義,相信一定能够對廣大設計師和建築裝飾設計專業的在校學生有所幫助。
中國建築裝飾協會作為行業的指導和組織機構,一直視推動整個行業進步,特別是科技、設計的進步為自己的光榮使命,一如既往地大力支持機构和個人做對行業發展有利的事,同時希望以本書為起點,圍繞施工圖多出書,出好書。 施工圖的春天到了!
作者簡介
本書作者團隊由國內的建築裝飾設計施工企業、高等院校中長期從事室內設計施工圖理論技術研發及實踐的專家組成,參編組織包括:清華大學美術學院、北京建築大學、天津大學建築設計規劃研究總院、中國裝潢股份有限公司、北京弘高創意建築設計股份有限公司、北京清尚建築裝飾工程有限公司、 中國建築裝飾集團有限公司、北京麗貝亞建築設計研究院有限公司等。
北京弘高建築裝飾工程設計有限公司董事長韓力煒與北京麗貝亞建築裝飾工程有限公司設計研究院院長
郭瑞勇連袂主編。
目錄
第一章頂棚裝飾裝修構造節點
第二章牆柱面裝飾裝修構造節點
第三章地面裝飾裝修構造節點
第四章牆面與頂棚交接構造節點
第五章牆面與地面交接構造節點
第六章室內裝飾面與建築幕牆交接構造節點
第七章室內門窗裝飾裝修構造節點
第八章樓梯踏步及護欄裝飾裝修構造節點
第九章衛浴空間裝飾裝修構造節點
附錄1施工圖設計依據
附錄2指導性檔案
書摘插畫







-------------------------------------------------------

【裝潢工程節點構造設計圖集】
內容簡介
本書作為裝潢企業工具書,系統地介紹了室內裝飾過程中的工藝工法,目的是幫助設計師提升製圖水准和工作效率。 本書使用B I M科技,從分部分項工程角度進行闡述,不僅滿足二維圖紙的表達深度,同時利用B I M的視覺化,對工藝工法進行三維設計節點展示。 書中尺寸除注明者外,均以毫米(mm)為組織。
1、113個節點涵蓋牆頂底重點施工工藝。
2、15年資深深化設計師創作,將國家標準與項目經驗相結合編繪。
3、113個工藝節點全部標明施工現場可工作尺寸,製圖建模均可參照繪製。
4、圖文並茂全面解析牆面、頂面、地面重要節點的工藝做法。
5、平面與三維結合,360°完美展示
6、每個節點詳細配套文字施工規範與工藝做法
7、每個節點至少三個而為剖面,每個二比特剖面配有相應的三維剖切示意
8、所有節點製作始於國際,基於項目
9、既以國標為基礎標準,又囊括了當下的新工藝,初學者也能根據此書迅速解决施工難題。
作者簡介
北京中外聯合建築裝飾工程有限公司總經理兼設計總監,具備15年裝潢行業從業經歷、6年BIM實務經驗。 現任北京室內裝飾協會設計委特聘設計委員會專家委員、中國建築學會建築施工分會BIM應用專業委員會委員、國際建設管理學會(ICM)會員、I C M認證的B I M專案管理總監。
擅長BIM科技在空間設計的應用及管理,側重對裝飾設計、施工階段專業的知識管理。
目錄
1一般規定
2樓地面工程
2.1石材工程細部構造
2.1.1室內普通樓地面石材施工示意圖
2.1.2室內廚衛樓地面石材施工示意圖
2.1.3陽臺樓地面石材(瓷磚)施工示意圖
2.1.4移門式沐浴房石材施工示意圖1
2.1.5移門式沐浴房石材施工示意圖2
2.1.6開門式淋浴房石材施工示意圖1
2.1.7開門式淋浴房石材施工示意圖2
2.1.8廚衛門套根部防水防潮施工示意圖
2.1.9廚衛門套、門檻石安裝示意圖1
2.1.10廚衛門套、門檻石安裝示意圖2
2.1.11樓梯地面(樓梯踏步)石材飾面示意圖
2.1.12石材加厚邊施工示意圖
2.1.13地面地漏安裝示意圖1
2.1.14地面地漏安裝示意圖2
2.1.15衛生間地漏施工示意圖
2.2鋪地毯工程細部構造
2.2.1樓地面地毯與踢腳線收口示意圖
2.2.2樓地面地毯與石材拼鋪介面示意圖
2.2.3架空地板施工示意圖
2.3木地板細部構造
2.3.1實木地板鋪裝示意圖1
2.3.2實木地板鋪裝示意圖2
2.3.3實木地板鋪裝示意圖3
2.3.4實木地板與踢腳線收口示意圖
2.3.5樓梯地面木地板飾面示意圖
2.3.6樓地面木地板與石材拼鋪示意圖(硬碰拼鋪管道)
2.3.7樓地面木地板與門檻石介面收口示意圖
2.3.8幹法地暖木地板龍骨開槽示意圖
2.3.9幹法地暖首長與木地板龍骨關係示意圖
2.4地膠板細部構造
2.4.1樓地面地膠板施工示意圖1
2.4.2樓地面地膠板施工示意圖2
2.5衛生間同層排水細部構造
2.5.1樓地面衛生間同層排水施工示意圖
2.5.2防水基層處理示意圖
2.5.3管根部位防水基層做法示意圖
3牆柱面工程
3.1石材飾面細部構造
3.1.1石材灌漿施工示意圖
3.1.2石材幹掛法施工示意圖1
3.1.3石材幹掛法施工示意圖2
3.1.4黏結劑粘貼石材施工示意圖(木基層)
3.1.5牆柱面石材U形槽排版示意圖
3.1.6牆面石材陽角收口示意圖
3.1.7牆面石材陰角收口示意圖
3.1.8坐便器安裝施工示意圖
3.1.9鋼架台盆安裝示意圖
3.1.10台下櫃台盆安裝示意圖
3.1.11衛生間玻璃隔斷與大理石牆面交接施工示意圖
3.1.12淋浴房門預埋件安裝示意圖
3.1.13凸窗檯面貼石材示意圖1
3.1.14凸窗檯面貼石材示意圖2
3.1.15普通窗臺貼石材示意圖1
3.1.16普通窗臺貼石材示意圖2
3.1.17全窗臺櫥櫃檯面翻邊施工示意圖
3.1.18高窗臺櫥櫃檯面翻邊施工示意圖
3.1.19低窗臺櫥櫃檯面翻邊施工示意圖
3.1.20浴缸黃砂襯底構造施工示意圖
3.1.21浴缸石材收口示意圖1
3.1.22浴缸石材收口示意圖2
3.1.23浴缸石材收口示意圖3
3.1.24浴缸石材收口示意圖4
3.1.25浴缸石材收口示意圖5
3.1.26浴缸石材收口示意圖6
3.2木飾面細部構造
3.2.1牆面木飾面安裝示意圖1
3.2.2牆面木飾面安裝示意圖2
3.2.3牆面木飾面安裝示意圖3
3.2.4牆面木飾面安裝示意圖4
3.2.5牆面木飾面做法示意圖1
3.2.6牆面木飾面做法示意圖2
3.2.7牆面木掛板做法示意圖1
3.2.8牆面木掛板做法示意圖2
3.2.9牆面木掛板做法示意圖3
3.2.10牆面木飾面之密縫做法示意圖1
3.2.11牆面木飾面之密縫做法示意圖2
3.2.12牆柱面木飾面之密縫做法示意圖3
3.2.13牆柱面木飾面之密縫做法示意圖4
3.2.14牆柱面木飾面之密縫做法示意圖5
3.2.15牆柱面木飾板之密縫做法示意圖6
3.2.16牆柱面木飾面之密縫做法示意圖7
3.2.17牆柱面木飾面之離縫做法示意圖1
3.2.18牆柱面木飾面之離縫做法示意圖2
3.2.19牆柱面木飾面之離縫做法示意圖3
3.2.20牆柱面木飾面之離縫做法示意圖4
3.2.21牆柱面木飾面之離縫做法示意圖5
3.2.22牆柱面木飾面之離縫做法示意圖6
3.2.23成品門套施工示意圖1
3.2.24成品門套施工示意圖2
3.3塗料飾面細部構造
3.3.1輕鋼龍骨隔牆桌面施工示意圖
3.3.2不同材質隔牆塗料施工示意圖
3.3.3粉刷完畢後開線槽防開裂處理示意圖
3.4瓷磚飾面細部構造
3.4.1牆面瓷磚陰陽角收口示意圖1
3.4.2牆面瓷磚陰陽角收口示意圖2
3.5特殊飾面細部構造
3.5.1鏡子玻璃安裝示意圖
3.5.2牆面石材玻璃木飾面交接示意圖1
3.5.3牆面石材玻璃木飾面交接示意圖2
3.5.4商鋪玻璃隔斷示意圖1
3.5.5商鋪玻璃隔斷示意圖2
3.5.6柱子鋁扣板示意圖1
3.5.7柱子鋁扣板示意圖2
3.5.8柱子鋁扣板示意圖3
3.5.9柱子鋁扣板示意圖4
3.5.10柱子鋁扣板示意圖5
3.5.11牆面千思板示意圖
3.5.12牆面陶土板示意圖
3.5.13牆面不銹鋼與瓷磚收口示意圖
3.5.14彩釉玻璃與鋁板牆面節點圖1
3.5.15彩釉玻璃與鋁板牆面節點圖2
3.5.16彩釉玻璃與鋁板牆面節點圖3
3.5.17牆面穿孔鋁板安裝示意圖1
3.5.18牆面穿孔鋁板安裝示意圖2
3.5.19牆面穿孔鋁板安裝示意圖3
3.5.20牆面穿孔鋁板安裝示意圖4
3.5.21牆面液晶屏(弧形)造型示意圖1
3.5.22牆面液晶屏(弧形)造型示意圖2
3.5.23鋁方通造型牆施工示意圖1
3.5.24鋁方通造型牆施工示意圖2
3.5.25鋁方通造型牆施工示意圖3
3.5.26鋁方通造型牆施工示意圖4
3.5.27燈箱安裝施工示意圖1
3.5.28燈箱安裝施工示意圖2
3.6牆面與頂棚交介面細部構造
3.6.1牆面石材與石膏板頂棚收口示意圖
3.6.2門梁部位牆紙收口示意圖
3.7隔牆細部構造
3.7.1地面隔牆施工示意圖1
3.7.2地面隔牆施工示意圖2
3.7.3輕鋼龍骨隔牆(斷橋結構)示意圖1
3.7.4輕鋼龍骨隔牆(斷橋結構)示意圖2
3.7.5輕鋼龍骨隔牆(半斷橋結構)示意圖
3.7.6輕鋼龍骨隔牆(兩側接線盒)示意圖1
3.7.7輕鋼龍骨隔牆(兩側接線盒)示意圖2
3.7.8輕鋼龍骨隔牆(兩側接線盒)示意圖3
3.7.9輕鋼龍骨隔牆(兩側接線盒)示意圖4
3.7.10手術室電解鋼板骨架示意圖1
3.7.11手術室電解鋼板骨架示意圖2
3.7.12手術室電解鋼板骨架示意圖3
3.7.13手術室電解鋼板骨架示意圖4
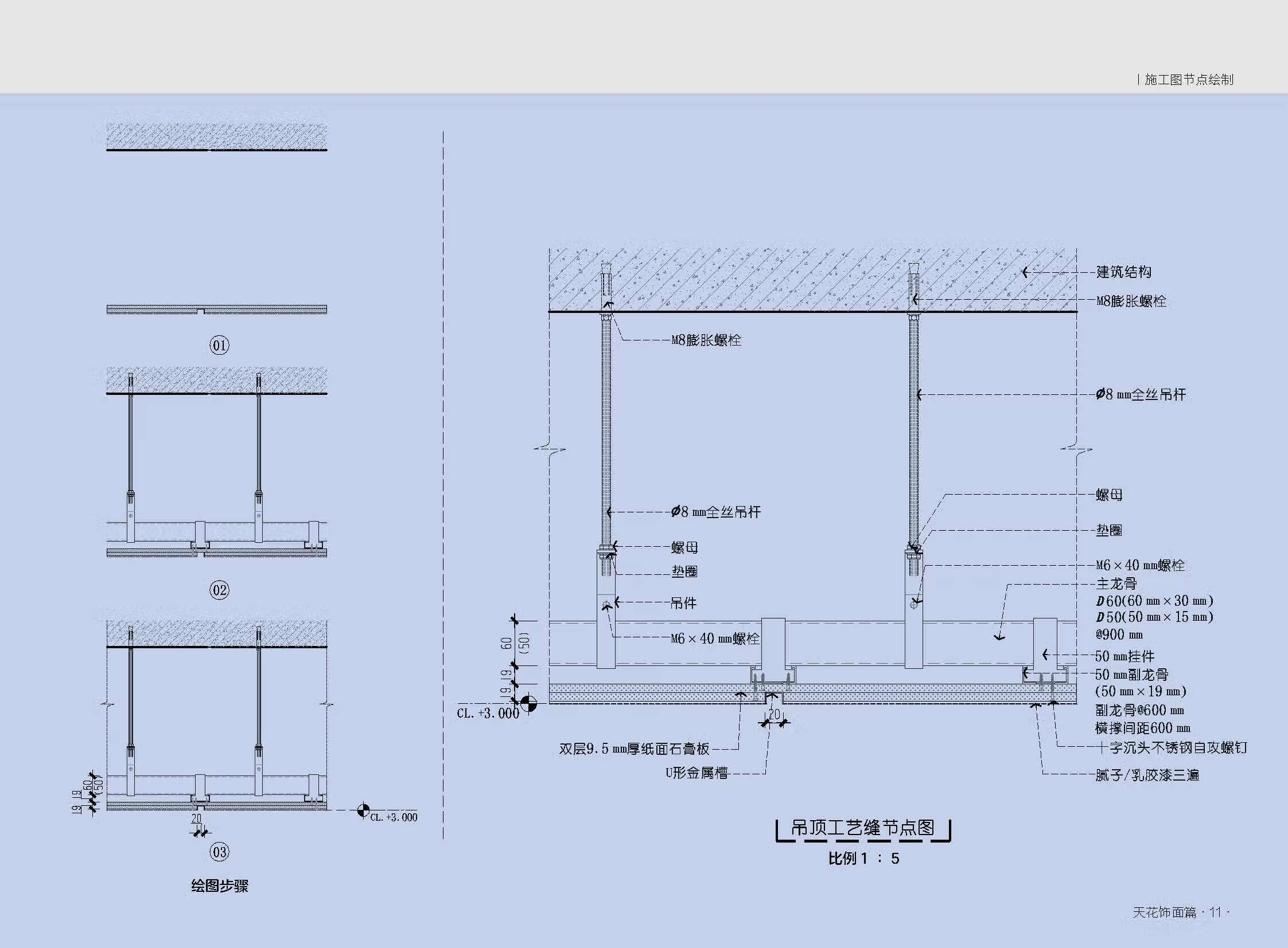
4吊頂工程
4.1吊頂細部構造
4.1.1疊級吊頂防開裂示意圖1
4.1.2疊級吊頂防開裂示意圖2
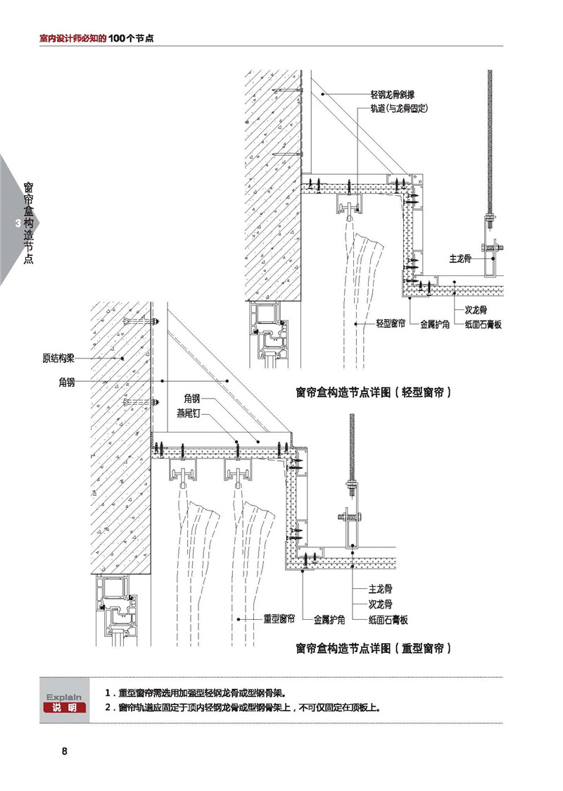
4.1.3窗簾盒木基層介面製作示意圖
4.1.4窗簾盒製作示意圖
4.1.5陰角槽施工示意圖
4.1.6弧形暗光槽施工示意圖1
4.1.7弧形暗光槽施工示意圖2
4.1.8疊級吊頂暗光槽施工示意圖
4.1.9吊頂檢修口(不上人)示意圖1
4.1.10吊頂檢修口(不上人)示意圖2
4.1.11吊頂檢修口(上人)示意圖1
4.1.12吊頂檢修口(上人)示意圖2
4.1.13吊燈安裝示意圖1
4.1.14吊燈安裝示意圖2
4.1.15吊燈安裝示意圖3
4.1.16空調風口安裝示意圖1(側出底回)
4.1.17空調風口安裝示意圖2(側出底回)
4.1.18空調風口安裝示意圖1(底出底回)
4.1.19空調風口安裝示意圖2(底出底回)
4.1.20吊頂伸縮縫施工示意圖1 152
4.1.21吊頂伸縮縫施工示意圖2 153
4.1.22淋浴房玻璃隔斷吊頂施工示意圖1
4.1.23淋浴房玻璃隔斷吊頂施工示意圖2
4.1.24吊頂木飾面安裝示意圖1
4.1.25吊頂木飾面安裝示意圖2
4.1.26吊頂木飾面安裝示意圖3
4.1.27吊頂石材安裝示意圖1
4.1.28吊頂石材安裝示意圖2
4.1.29吊頂鋁單板示意圖1
4.1.30吊頂鋁單板示意圖2
4.1.31吊頂鋁單板示意圖3
4.1.32吊頂可開啟式鋁單板示意圖1
4.1.33吊頂可開啟式鋁單板示意圖2
4.1.34吊頂鋁方通示意圖1
4.1.35吊頂鋁方通示意圖2
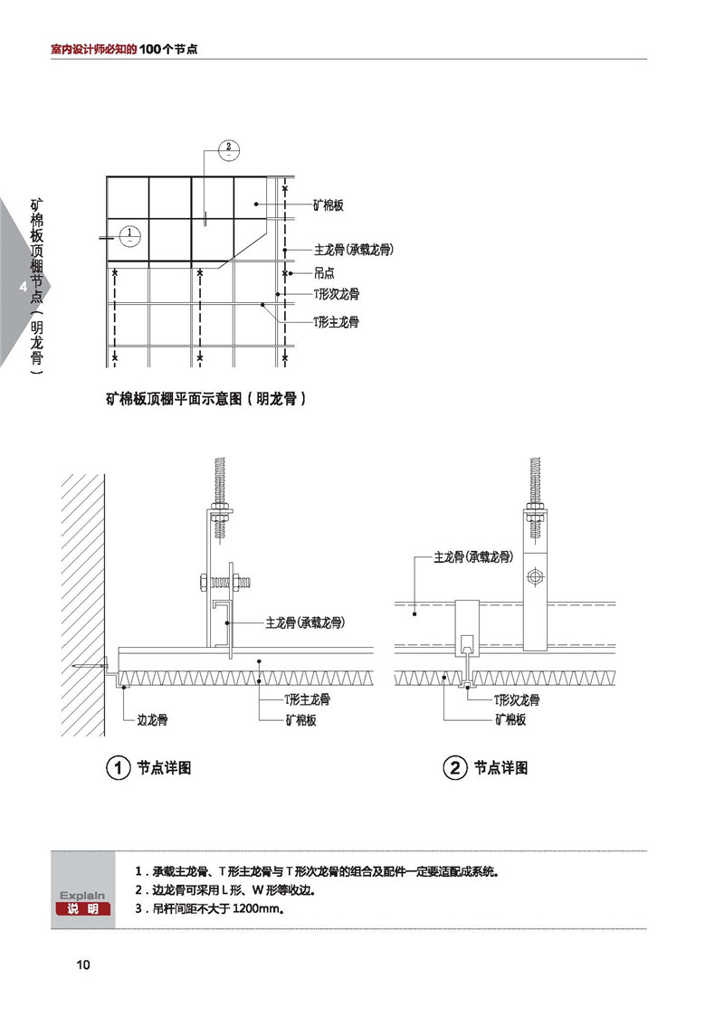
4.1.36礦棉板節點示意圖1
4.1.37礦棉板節點示意圖2
4.1.38防火封堵施工示意圖1
4.1.39防火封堵施工示意圖2
4.1.40吊頂蜂窩鋁板示意圖1
4.1.41吊頂蜂窩鋁板示意圖2
4.1.42軟膜吊頂天花示意圖
5其他工程
5.1其他細部構造
5.1.1鋁板幕牆示意圖1
5.1.2鋁板幕牆示意圖2
5.1.3鋁板幕牆示意圖3
5.1.4鋁板幕牆示意圖4
5.1.5鋁板幕牆示意圖5
5.1.6鋁板幕牆示意圖6
5.1.7層間鋁板施工示意圖1
5.1.8層間鋁板施工示意圖2
5.1.9層間鋁板施工示意圖3
5.1.10層間鋁板施工示意圖4
5.1.11值機區鋁板牆面節點圖1
5.1.12值機區鋁板牆面節點圖2
5.1.13值機區鋁板牆面節點圖3
5.1.14值機區鋁板牆面節點圖4
書摘插畫







-------------------------------------------------------

【室內設計場景工藝】
內容簡介
全書包含天花飾面篇、地坪飾面篇、牆身飾面篇、牆體構造篇四大類別,共計113個室內裝修關鍵且常用的施工節點。 為方便讀者閱讀,全書採用一個節點一個左右頁對應編排的形式展現,左手頁以直觀的3D圖展示各節點工藝標準、施工順序、資料、規格及規範,身臨其境,通俗易懂; 右手頁對該節點的施工圖繪製過程和標準進行展示,入門新手也能一看即懂。 有效解決了從業人員缺乏工地現場經驗、高品質標準項目經驗、深化設計經驗以及節點圖紙繪製規範等難題。
本書旨在為設計師提供一本涵蓋面廣的通用節點工具書,方便大家在設計過程中快速地參攷相關的節點工藝,也是入門新手可以跨行業自學的輔導書。
作者簡介
熙地設計:是一家專業為大型項目提供相配套的室內設計及深化設計服務的資深團隊,在室內設計及行業細分的深化設計領域裏,始終秉持並致力於打造項目品質與專業化服務體系和完善市場規範這一重要環節,主持完成了大量的大型品質設計服務專案,積累了豐富的項目經驗和對設計深刻的理解。





臺南孫**[0988***296]
15分鐘前【室內設計師必知的100個節點】+【建築構造設計必知的100個節點】+【裝潢工程節點構造設計圖集】+【室內設計場景工藝】 - 【裝潢工程節點構造設計圖集】+【室內設計場景工藝】(兩册,價:1700)
高雄劉**[0918***515]
2分鐘前【室內設計師必知的100個節點】+【建築構造設計必知的100個節點】+【裝潢工程節點構造設計圖集】+【室內設計場景工藝】 - 【裝潢工程節點構造設計圖集】+【室內設計場景工藝】(兩册,價:1700)
桃園鄭**[0986***633]
5分鐘前【室內設計師必知的100個節點】+【建築構造設計必知的100個節點】+【裝潢工程節點構造設計圖集】+【室內設計場景工藝】 - 【室內設計師必知的100個節點】+【建築構造設計必知的100個節點】+【裝潢工程節點構造設計圖集】+【室內設計場景工藝】(四册,價:2700)
基隆朱**[0938***346]
15分鐘前【室內設計師必知的100個節點】+【建築構造設計必知的100個節點】+【裝潢工程節點構造設計圖集】+【室內設計場景工藝】 - 【室內設計師必知的100個節點】+【建築構造設計必知的100個節點】+【裝潢工程節點構造設計圖集】+【室內設計場景工藝】(四册,價:2700)
嘉義錢**[0978***945]
半小時前【室內設計師必知的100個節點】+【建築構造設計必知的100個節點】+【裝潢工程節點構造設計圖集】+【室內設計場景工藝】 - 【室內設計師必知的100個節點】+【建築構造設計必知的100個節點】(兩册,價:1700)
臺北劉**[0988***479]
25分鐘前【室內設計師必知的100個節點】+【建築構造設計必知的100個節點】+【裝潢工程節點構造設計圖集】+【室內設計場景工藝】 - 【裝潢工程節點構造設計圖集】+【室內設計場景工藝】(兩册,價:1700)
嘉義周**[0988***688]
20分鐘前【室內設計師必知的100個節點】+【建築構造設計必知的100個節點】+【裝潢工程節點構造設計圖集】+【室內設計場景工藝】 - 【裝潢工程節點構造設計圖集】+【室內設計場景工藝】(兩册,價:1700)
桃園孫**[0998***798]
7分鐘前【室內設計師必知的100個節點】+【建築構造設計必知的100個節點】+【裝潢工程節點構造設計圖集】+【室內設計場景工藝】 - 【裝潢工程節點構造設計圖集】+【室內設計場景工藝】(兩册,價:1700)
高雄符**[0988***740]
20分鐘前【室內設計師必知的100個節點】+【建築構造設計必知的100個節點】+【裝潢工程節點構造設計圖集】+【室內設計場景工藝】 - 【裝潢工程節點構造設計圖集】+【室內設計場景工藝】(兩册,價:1700)
臺南仲**[0988***821]
15分鐘前【室內設計師必知的100個節點】+【建築構造設計必知的100個節點】+【裝潢工程節點構造設計圖集】+【室內設計場景工藝】 - 【室內設計師必知的100個節點】+【建築構造設計必知的100個節點】+【裝潢工程節點構造設計圖集】+【室內設計場景工藝】(四册,價:2700)
嘉義柳**[0933***854]
半小時前【室內設計師必知的100個節點】+【建築構造設計必知的100個節點】+【裝潢工程節點構造設計圖集】+【室內設計場景工藝】 - 【室內設計師必知的100個節點】+【建築構造設計必知的100個節點】(兩册,價:1700)
臺南柳**[0968***239]
半小時前【室內設計師必知的100個節點】+【建築構造設計必知的100個節點】+【裝潢工程節點構造設計圖集】+【室內設計場景工藝】 - 【室內設計師必知的100個節點】+【建築構造設計必知的100個節點】(兩册,價:1700)
新北符**[0951***394]
5分鐘前【室內設計師必知的100個節點】+【建築構造設計必知的100個節點】+【裝潢工程節點構造設計圖集】+【室內設計場景工藝】 - 【裝潢工程節點構造設計圖集】+【室內設計場景工藝】(兩册,價:1700)
臺南趙**[0988***414]
2分鐘前【室內設計師必知的100個節點】+【建築構造設計必知的100個節點】+【裝潢工程節點構造設計圖集】+【室內設計場景工藝】 - 【裝潢工程節點構造設計圖集】+【室內設計場景工藝】(兩册,價:1700)
嘉義孫**[0918***125]
半小時前【室內設計師必知的100個節點】+【建築構造設計必知的100個節點】+【裝潢工程節點構造設計圖集】+【室內設計場景工藝】 - 【室內設計師必知的100個節點】+【建築構造設計必知的100個節點】(兩册,價:1700)
臺北楊**[0920***834]
25分鐘前【室內設計師必知的100個節點】+【建築構造設計必知的100個節點】+【裝潢工程節點構造設計圖集】+【室內設計場景工藝】 - 【室內設計師必知的100個節點】+【建築構造設計必知的100個節點】(兩册,價:1700)
高雄柳**[0998***137]
7分鐘前【室內設計師必知的100個節點】+【建築構造設計必知的100個節點】+【裝潢工程節點構造設計圖集】+【室內設計場景工藝】 - 【室內設計師必知的100個節點】+【建築構造設計必知的100個節點】(兩册,價:1700)
臺中方**[0986***976]
半小時前【室內設計師必知的100個節點】+【建築構造設計必知的100個節點】+【裝潢工程節點構造設計圖集】+【室內設計場景工藝】 - 【裝潢工程節點構造設計圖集】+【室內設計場景工藝】(兩册,價:1700)
新竹方**[0988***707]
11分鐘前【室內設計師必知的100個節點】+【建築構造設計必知的100個節點】+【裝潢工程節點構造設計圖集】+【室內設計場景工藝】 - 【裝潢工程節點構造設計圖集】+【室內設計場景工藝】(兩册,價:1700)
新竹周**[0986***862]
7分鐘前【室內設計師必知的100個節點】+【建築構造設計必知的100個節點】+【裝潢工程節點構造設計圖集】+【室內設計場景工藝】 - 【室內設計師必知的100個節點】+【建築構造設計必知的100個節點】+【裝潢工程節點構造設計圖集】+【室內設計場景工藝】(四册,價:2700)
嘉義方**[0933***269]
4分鐘前【室內設計師必知的100個節點】+【建築構造設計必知的100個節點】+【裝潢工程節點構造設計圖集】+【室內設計場景工藝】 - 【室內設計師必知的100個節點】+【建築構造設計必知的100個節點】+【裝潢工程節點構造設計圖集】+【室內設計場景工藝】(四册,價:2700)
新竹孫**[0956***104]
15分鐘前【室內設計師必知的100個節點】+【建築構造設計必知的100個節點】+【裝潢工程節點構造設計圖集】+【室內設計場景工藝】 - 【裝潢工程節點構造設計圖集】+【室內設計場景工藝】(兩册,價:1700)
臺中錢**[0960***152]
半小時前【室內設計師必知的100個節點】+【建築構造設計必知的100個節點】+【裝潢工程節點構造設計圖集】+【室內設計場景工藝】 - 【室內設計師必知的100個節點】+【建築構造設計必知的100個節點】+【裝潢工程節點構造設計圖集】+【室內設計場景工藝】(四册,價:2700)
臺中錢**[0938***449]
11分鐘前【室內設計師必知的100個節點】+【建築構造設計必知的100個節點】+【裝潢工程節點構造設計圖集】+【室內設計場景工藝】 - 【室內設計師必知的100個節點】+【建築構造設計必知的100個節點】+【裝潢工程節點構造設計圖集】+【室內設計場景工藝】(四册,價:2700)
新北方**[0920***866]
11分鐘前【室內設計師必知的100個節點】+【建築構造設計必知的100個節點】+【裝潢工程節點構造設計圖集】+【室內設計場景工藝】 - 【室內設計師必知的100個節點】+【建築構造設計必知的100個節點】(兩册,價:1700)
高雄劉**[0998***349]
2分鐘前【室內設計師必知的100個節點】+【建築構造設計必知的100個節點】+【裝潢工程節點構造設計圖集】+【室內設計場景工藝】 - 【裝潢工程節點構造設計圖集】+【室內設計場景工藝】(兩册,價:1700)
基隆符**[0918***929]
25分鐘前【室內設計師必知的100個節點】+【建築構造設計必知的100個節點】+【裝潢工程節點構造設計圖集】+【室內設計場景工藝】 - 【室內設計師必知的100個節點】+【建築構造設計必知的100個節點】(兩册,價:1700)
新竹陳**[0920***124]
20分鐘前【室內設計師必知的100個節點】+【建築構造設計必知的100個節點】+【裝潢工程節點構造設計圖集】+【室內設計場景工藝】 - 【室內設計師必知的100個節點】+【建築構造設計必知的100個節點】(兩册,價:1700)
臺北李**[0968***808]
12分鐘前【室內設計師必知的100個節點】+【建築構造設計必知的100個節點】+【裝潢工程節點構造設計圖集】+【室內設計場景工藝】 - 【室內設計師必知的100個節點】+【建築構造設計必知的100個節點】(兩册,價:1700)
基隆趙**[0978***112]
半小時前【室內設計師必知的100個節點】+【建築構造設計必知的100個節點】+【裝潢工程節點構造設計圖集】+【室內設計場景工藝】 - 【室內設計師必知的100個節點】+【建築構造設計必知的100個節點】(兩册,價:1700)
臺南仲**[0978***826]
15分鐘前【室內設計師必知的100個節點】+【建築構造設計必知的100個節點】+【裝潢工程節點構造設計圖集】+【室內設計場景工藝】 - 【室內設計師必知的100個節點】+【建築構造設計必知的100個節點】(兩册,價:1700)
基隆黃**[0920***749]
7分鐘前【室內設計師必知的100個節點】+【建築構造設計必知的100個節點】+【裝潢工程節點構造設計圖集】+【室內設計場景工藝】 - 【裝潢工程節點構造設計圖集】+【室內設計場景工藝】(兩册,價:1700)
基隆方**[0956***223]
2分鐘前【室內設計師必知的100個節點】+【建築構造設計必知的100個節點】+【裝潢工程節點構造設計圖集】+【室內設計場景工藝】 - 【裝潢工程節點構造設計圖集】+【室內設計場景工藝】(兩册,價:1700)
桃園孫**[0956***212]
12分鐘前【室內設計師必知的100個節點】+【建築構造設計必知的100個節點】+【裝潢工程節點構造設計圖集】+【室內設計場景工藝】 - 【室內設計師必知的100個節點】+【建築構造設計必知的100個節點】+【裝潢工程節點構造設計圖集】+【室內設計場景工藝】(四册,價:2700)
臺南王**[0966***118]
2分鐘前【室內設計師必知的100個節點】+【建築構造設計必知的100個節點】+【裝潢工程節點構造設計圖集】+【室內設計場景工藝】 - 【室內設計師必知的100個節點】+【建築構造設計必知的100個節點】+【裝潢工程節點構造設計圖集】+【室內設計場景工藝】(四册,價:2700)
新竹王**[0918***831]
11分鐘前【室內設計師必知的100個節點】+【建築構造設計必知的100個節點】+【裝潢工程節點構造設計圖集】+【室內設計場景工藝】 - 【室內設計師必知的100個節點】+【建築構造設計必知的100個節點】+【裝潢工程節點構造設計圖集】+【室內設計場景工藝】(四册,價:2700)
臺北柳**[0968***600]
2分鐘前【室內設計師必知的100個節點】+【建築構造設計必知的100個節點】+【裝潢工程節點構造設計圖集】+【室內設計場景工藝】 - 【室內設計師必知的100個節點】+【建築構造設計必知的100個節點】+【裝潢工程節點構造設計圖集】+【室內設計場景工藝】(四册,價:2700)
桃園王**[0932***962]
12分鐘前【室內設計師必知的100個節點】+【建築構造設計必知的100個節點】+【裝潢工程節點構造設計圖集】+【室內設計場景工藝】 - 【室內設計師必知的100個節點】+【建築構造設計必知的100個節點】+【裝潢工程節點構造設計圖集】+【室內設計場景工藝】(四册,價:2700)
高雄劉**[0932***872]
25分鐘前【室內設計師必知的100個節點】+【建築構造設計必知的100個節點】+【裝潢工程節點構造設計圖集】+【室內設計場景工藝】 - 【室內設計師必知的100個節點】+【建築構造設計必知的100個節點】+【裝潢工程節點構造設計圖集】+【室內設計場景工藝】(四册,價:2700)
新北朱**[0918***470]
25分鐘前【室內設計師必知的100個節點】+【建築構造設計必知的100個節點】+【裝潢工程節點構造設計圖集】+【室內設計場景工藝】 - 【室內設計師必知的100個節點】+【建築構造設計必知的100個節點】+【裝潢工程節點構造設計圖集】+【室內設計場景工藝】(四册,價:2700)
臺南黃**[0938***611]
15分鐘前【室內設計師必知的100個節點】+【建築構造設計必知的100個節點】+【裝潢工程節點構造設計圖集】+【室內設計場景工藝】 - 【室內設計師必知的100個節點】+【建築構造設計必知的100個節點】(兩册,價:1700)
嘉義張**[0918***376]
5分鐘前【室內設計師必知的100個節點】+【建築構造設計必知的100個節點】+【裝潢工程節點構造設計圖集】+【室內設計場景工藝】 - 【室內設計師必知的100個節點】+【建築構造設計必知的100個節點】+【裝潢工程節點構造設計圖集】+【室內設計場景工藝】(四册,價:2700)
臺中鍾**[0933***554]
11分鐘前【室內設計師必知的100個節點】+【建築構造設計必知的100個節點】+【裝潢工程節點構造設計圖集】+【室內設計場景工藝】 - 【室內設計師必知的100個節點】+【建築構造設計必知的100個節點】+【裝潢工程節點構造設計圖集】+【室內設計場景工藝】(四册,價:2700)
臺北謝**[0968***345]
4分鐘前【室內設計師必知的100個節點】+【建築構造設計必知的100個節點】+【裝潢工程節點構造設計圖集】+【室內設計場景工藝】 - 【室內設計師必知的100個節點】+【建築構造設計必知的100個節點】+【裝潢工程節點構造設計圖集】+【室內設計場景工藝】(四册,價:2700)
臺北周**[0998***982]
4分鐘前【室內設計師必知的100個節點】+【建築構造設計必知的100個節點】+【裝潢工程節點構造設計圖集】+【室內設計場景工藝】 - 【室內設計師必知的100個節點】+【建築構造設計必知的100個節點】+【裝潢工程節點構造設計圖集】+【室內設計場景工藝】(四册,價:2700)
基隆孫**[0938***586]
4分鐘前【室內設計師必知的100個節點】+【建築構造設計必知的100個節點】+【裝潢工程節點構造設計圖集】+【室內設計場景工藝】 - 【室內設計師必知的100個節點】+【建築構造設計必知的100個節點】(兩册,價:1700)
嘉義陳**[0946***384]
15分鐘前【室內設計師必知的100個節點】+【建築構造設計必知的100個節點】+【裝潢工程節點構造設計圖集】+【室內設計場景工藝】 - 【室內設計師必知的100個節點】+【建築構造設計必知的100個節點】(兩册,價:1700)
臺北王**[0918***952]
4分鐘前【室內設計師必知的100個節點】+【建築構造設計必知的100個節點】+【裝潢工程節點構造設計圖集】+【室內設計場景工藝】 - 【裝潢工程節點構造設計圖集】+【室內設計場景工藝】(兩册,價:1700)
新竹仲**[0938***668]
7分鐘前【室內設計師必知的100個節點】+【建築構造設計必知的100個節點】+【裝潢工程節點構造設計圖集】+【室內設計場景工藝】 - 【室內設計師必知的100個節點】+【建築構造設計必知的100個節點】+【裝潢工程節點構造設計圖集】+【室內設計場景工藝】(四册,價:2700)
嘉義陳**[0946***670]
11分鐘前【室內設計師必知的100個節點】+【建築構造設計必知的100個節點】+【裝潢工程節點構造設計圖集】+【室內設計場景工藝】 - 【室內設計師必知的100個節點】+【建築構造設計必知的100個節點】(兩册,價:1700)
































