
















【室內設計施工圖節點圖集】
內容簡介
本書是對室內各部位施工時的節點設計、施工工藝、裝修材料、收口工藝等以圖文結合的形式進行展示、講解。 涵蓋吊頂、地坪、區域地坪相關、地面、天花與天花、地坪與地坪、牆面與背景牆、牆面與天花、牆面與地面、牆面與牆面、門檻石、踢腳線、包柱、樓梯踏步、電視背景牆、窗臺板、玻璃隔斷、防火捲簾軌道、變形縫、門、台盆櫃、前臺傢俱、欄杆、幕牆等24個章節,658個節點。
書中節點圖按照統一標準動態塊繪製,無任何雜層、雜項,可配合各設計公司的圖層轉換,便於快速達到出圖要求,可供相關專業學生、初級入行人員、施工圖深化人員、設計師、設計總監、監理人員、施工人員學習、參攷。
作者簡介
王滄:畢業於北京工業大學,深化線上網站創始人,上海奇福建築裝飾工程設計有限公司創始人,自2004年至今從事深化設計工作19年。 主持和參與了如環球金融中心、靜安越洋廣場、琥珀別墅、柏嘉半島項目; 柏悅飯店、海底撈等酒店餐飲項目; 樣板房、售樓處和辦公類建築的深化設計工作。
目錄
A吊頂節點/ 019
1石膏板吊頂/ 020
2金屬板吊頂/ 042
3木飾面吊頂/ 056
4透光膜吊頂/ 062
5石材吊頂/ 066
6礦棉板吊頂/ 069
7玻璃、鏡面吊頂/ 075
8 GRG石膏板吊頂/ 079
B地坪節點/ 081
1原樓板/ 082
2原樓板(帶防水)/ 084
3原樓板(帶地暖)/ 085
4架空地板/ 088
C區域地坪相關節點/ 091
1衛生間/ 092
2廚房/ 098
3地漏/ 099
4地面功能相關/ 105
D牆面節點(牆型錶)/ 109
1輕鋼龍骨牆/ 110
2鋼結構牆/ 113
3輕質磚牆、混凝土牆/ 119
E天花與天花收口節點/ 125
1乳膠漆天花與其他資料天花/ 126
2木飾面天花與其他資料天花/ 126
3鋁板天花與其他資料天花/ 127
4石材天花與其他資料天花/ 128
5玻璃(鏡面)天花與其他資料天花/ 130
F地坪與地坪收口節點/ 133
1卷毯地坪與卷毯地坪/ 134
2塊毯地坪與其他資料地坪/ 134
3實木地板地坪與其他資料地坪/ 135
4複合地板地坪與其他資料地坪/ 136
5石材地坪與其他資料地坪/ 140
6地磚、馬賽克磚地坪與其他資料地坪/ 145
7水磨石地坪與其他資料地坪/ 150
8 PVC地板地坪與其他資料地坪/ 153
G牆面與牆面(背景牆)造型收口節點/ 157
1乳膠漆(桌面)牆面與其他資料背景牆/ 158
2木飾面背景牆與其他資料背景牆/ 159
3石材牆面、背景牆與其他資料背景牆/ 161
4馬賽克磚牆面與其他資料背景牆/ 164
5軟包、硬包(皮革)牆面與其他資料背景牆/ 166
6金屬牆面與其他資料背景牆/ 168
7鏡面牆面、背景牆與其他資料背景牆/ 170
H牆面與天花收口節點/ 173
1乳膠漆牆面與不同資料天花/ 174
2木飾面牆面與不同資料天花/ 178
3濕貼石材牆面與不同資料天花/ 181
4幹掛石材牆面與不同資料天花/ 184
5牆磚與不同資料天花/ 187
6鏡面牆面與不同資料天花/ 190
7軟包牆面與不同資料天花/ 193
8硬包(皮革)牆面與不同資料天花/ 196
9金屬板牆面與不同資料天花/ 199
I牆面與地面收口節點/ 203
1牆面漆類牆面與不同資料地面/ 204
2木飾面牆面與不同資料地面/ 206
3濕貼石材牆面與不同資料地面/ 210
4幹掛石材牆面與不同資料地面/ 213
5馬賽克磚牆面與不同資料地面/ 216
6鏡面牆面與不同資料地面/ 218
7軟包牆面與不同資料地面/ 221
8硬包(皮革)牆面與不同資料地面/ 225
9鋁板牆面與不同資料地面/ 229
J牆面與牆面陰陽角收口節點/ 233
K門檻石收口節點/ 257
L踢腳線節點/ 269
M包柱節點/ 275
N樓梯踏步節點/ 283
O電視背景牆節點/ 291
P窗台板節點/ 297
Q玻璃隔斷節點/ 299
R防火捲簾軌道收口節點/ 305
S變形縫節點/ 309
1室內牆面變形縫/ 310
2吊頂變形縫/ 312
3地坪變形縫/ 314
4室外牆面變形縫/ 317
5屋面變形縫/ 318
T門節點/ 319
1單開門/ 320
2子母門/ 322
3超高門/ 324
4極簡門/ 326
5玻璃門/ 328
6內嵌式移門/ 330
7外掛式移門/ 332
8電動移門/ 334
9逃生門/ 336
10進戶門/ 338
……
U台盆櫃節點/ 369
V前臺傢俱節點/ 377
W欄杆節點/ 385
X幕牆節點/ 391
附錄/ 403

-------------------------------------------

【室內設計場景工藝】
編輯推薦
深化設計是室內設計行業的一個細分領域,是從設計概念至項目落地的整個過程中至關重要的一個環節,起著承上啟下的作用。 節點不但要表達設計師對裝潢形式細節的要求,同時,它也是內部構造做法、資料、尺寸以及實施科技的直接表達和體現。 本書以圖解的形式匯總了牆、頂、地113個關鍵且常用的施工節點,用3D圖的形式形象展示了場景工藝的關鍵點,分步驟介紹了施工圖節點繪製,是建築設計師、室內設計師、施工人員、監理人員、驗收人員、房地產開發商均可參攷的一本實用指導書。
內容簡介
全書包含天花飾面篇、地坪飾面篇、牆身飾面篇、牆體構造篇四大類別,共計113個室內裝修關鍵且常用的施工節點。 為方便讀者閱讀,全書採用一個節點一個左右頁對應編排的形式展現,左手頁以直觀的3D圖展示各節點工藝標準、施工順序、資料、規格及規範,身臨其境,通俗易懂; 右手頁對該節點的施工圖繪製過程和標準進行展示,入門新手也能一看即懂。 有效解決了從業人員缺乏工地現場經驗、高品質標準項目經驗、深化設計經驗以及節點圖紙繪製規範等難題。
本書旨在為設計師提供一本涵蓋面廣的通用節點工具書,方便大家在設計過程中快速地參攷相關的節點工藝,也是入門新手可以跨行業自學的輔導書。
作者簡介
熙地設計:是一家專業為大型項目提供相配套的室內設計及深化設計服務的資深團隊,在室內設計及行業細分的深化設計領域裏,始終秉持並致力於打造項目品質與專業化服務體系和完善市場規範這一重要環節,主持完成了大量的大型品質設計服務專案,積累了豐富的項目經驗和對設計深刻的理解。
目錄
1天花飾面篇
01懸吊式輕鋼龍骨石膏板吊頂8
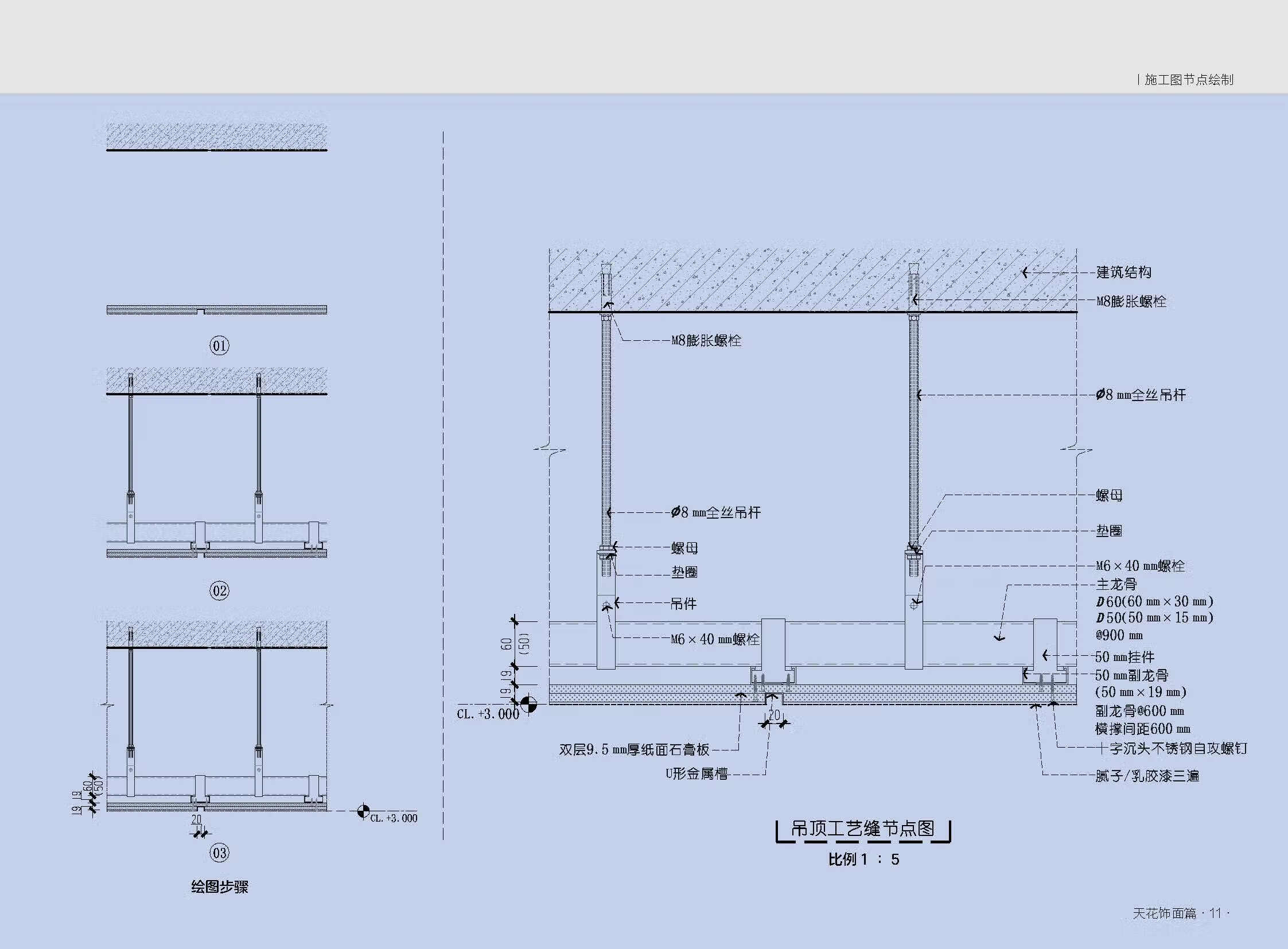
02輕鋼龍骨石膏板吊頂——工藝縫10
03輕鋼龍骨石膏板吊頂——檢修口12
04輕鋼龍骨石膏板吊頂——燈槽造型14
05輕鋼龍骨石膏板吊頂——石膏角線燈槽造型16
06輕鋼龍骨石膏板吊頂——燈槽加空調風口18
07輕鋼龍骨石膏板吊頂——燈槽加弧形角線20
08輕鋼龍骨石膏板吊頂——暗藏式窗簾盒22
09輕鋼龍骨石膏板吊頂——暗藏式窗簾盒低於窗24
10輕鋼龍骨石膏板吊頂——明裝式窗簾盒26
11輕鋼龍骨石膏板吊頂——明裝式窗簾盒低於窗28
12輕鋼龍骨石膏板吊頂——沉降縫做法30
13輕鋼龍骨石膏板吊頂——暗藏式投影幕32
14輕鋼龍骨石膏板吊頂——靠牆暗藏式投影幕34
15輕鋼龍骨石膏板吊頂——斜面造型36
16輕鋼龍骨石膏板吊頂——暗藏升降式投影儀38
17輕鋼龍骨石膏板吊頂——升降式擋煙垂壁40
18輕鋼龍骨石膏板吊頂——鋼制防火捲簾42
19輕鋼龍骨石膏板吊頂——固定式擋煙垂壁44
20輕鋼龍骨石膏板吊頂——斜拉式反支撐46
21輕鋼龍骨石膏板吊頂——反支撐常規做法48
22輕鋼龍骨石膏板吊頂——內嵌式花灑50
23輕鋼龍骨石膏板吊頂——無紡布防火捲簾52
24輕鋼龍骨石膏板吊頂——軟膜天花燈箱54
25輕鋼龍骨石膏板吊頂——亞克力燈箱56
26輕鋼龍骨石膏板吊頂——木飾面天花58
27金屬格栅吊頂——金屬圓管60
28金屬格栅吊頂——矩形金屬管62
29輕鋼龍骨牆、頂連接處做法——陰角工藝縫64
30輕鋼龍骨牆、頂連接處做法——石膏角線66
31牆、頂連接處做法——燈槽加空調風口68
32卡式承載龍骨石膏板吊頂70
33貼頂式輕鋼龍骨石膏板吊頂72
2地坪飾面篇
01地面沉降縫收口76
02混凝土基層——木地板78
03混凝土樓梯——木地板踏步暗藏燈帶80
04木龍骨基層——木地板82
05鋼結構樓梯——木地板踏步84
06混凝土樓梯——木地板踏步86
07塊毯地面鋪裝及金屬踢腳線88
08滿鋪卷材地毯及金屬踢腳線90
09鋼結構樓梯——地毯踏步92
10混凝土樓梯——地毯踏步94
11混凝土樓梯——石材踏步暗藏燈帶96
12鋼結構樓梯——石材踏步98
13石材地面鋪裝——幹鋪法100
14石材地面明裝地漏102
15石材地面隱形地漏104
16石材地面定制型隱形地漏106
17泳池排水槽與明裝排水格栅108
18泳池隱形式排水槽110
19衛生間門檻石地坪112
20淋浴區擋水檻地坪114
21地暖及石材地坪116
22水磨石地坪118
23塑膠地板地坪及金屬踢腳線120
24環氧地坪122
25鋼架地台石材地面124
26防腐木地坪126
27地面架空地板128
28玻璃地台地坪130
29石材地面與除塵地毯132
30木地板與卷材地毯交接收口134
31石材地坪與卷材地毯交接收口136
32石材地坪與木地板交接收口138
3牆身飾面篇
01輕鋼龍骨石膏板牆體——乳膠漆飾面142
02混凝土及砌塊牆體——乳膠漆飾面144
03輕鋼龍骨牆體——硬包飾面幹掛146
04蒸壓加氣混凝土砌塊牆體——硬包飾面幹掛148
05輕鋼龍骨牆體——木飾面幹掛150
06蒸壓加氣混凝土砌塊牆體——木飾面幹掛152
07輕鋼龍骨牆體——木飾面粘貼154
08蒸壓加氣混凝土砌塊牆體——木飾面粘貼156
09輕鋼龍骨石膏板牆體——桌面飾面158
10輕鋼龍骨牆體——木質吸聲板飾面160
11蒸壓加氣混凝土砌塊牆體——木質吸聲板飾面162
12輕鋼龍骨牆體——金屬板飾面164
13蒸壓加氣混凝土砌塊牆體——金屬板飾面166
14輕鋼龍骨牆體——金屬板飾面幹掛168
15蒸壓加氣混凝土砌塊牆體——金屬板飾面幹掛170
16鋼結構牆體——石材飾面濕貼172
17砌塊牆體——石材飾面濕貼174
18混凝土結構牆體——石材飾面幹掛176
19蒸壓加氣混凝土砌塊牆體——石材飾面幹掛178
20輕鋼龍骨牆體——軟包飾面幹掛180
21蒸壓加氣混凝土砌塊牆體——軟包飾面幹掛182
22輕鋼龍骨牆體——玻璃飾面184
23蒸壓加氣混凝土砌塊牆體——玻璃飾面186
24混凝土結構牆體——GRG飾面幹掛188
25蒸壓加氣混凝土砌塊牆體——GRG飾面幹掛190
26電梯金屬門套與牆面石材飾面192
27電梯石材門套與牆面石材飾面194
28建築幕牆窗——石材窗臺板濕貼196
29建築幕牆窗——石材窗臺板粘貼198
30石材牆面與淋浴玻璃隔斷固定收口200
31玻璃幕牆/窗與輕鋼龍骨牆體交接收口(管道一)202
32玻璃幕牆/窗與輕鋼龍骨牆體交接收口(管道二)204
33暗藏蹲便器水箱——幹掛石材206
34掛牆小便器——幹掛石材208
35暗藏式坐便器水箱——幹掛石材210
36牆面幹掛石材——沉降縫收口212
37石材牆面與石材踢腳線平收口214
38石材牆面與石材踢腳線凸收口216
39石材牆面與內凹金屬踢腳線收口218
40石材牆面與凸出金屬踢腳線收口220
41牆地面濕貼石材及防水222
42幹掛石材消火栓暗門224
4牆體構造篇
01蒸壓加氣混凝土砌塊隔牆牆體構造228
02雙排輕鋼石膏板隔牆牆體構造230
03混凝土導牆輕鋼石膏板隔牆牆體構造232
04鋼架隔牆牆體構造234
05超薄鋼架石材牆牆體構造236
06玻璃隔牆牆體構造238




-------------------------------------------

【景觀節點CAD施工圖集】
內容簡介
施工圖的質量高低直接影響到項目的落地效果,施工圖的繪製過程是一個注重細節的設計過程。 本書根據現代景觀施工設計要求,分為園路與鋪裝常用做法、景觀構築物常用做法和景觀通用做法三個章節,每個章節還進一步細分成各個常用節點,並展示了常用節點的多種可落地施工做法及各個節點之間的連接做法,使讀者可以清晰瞭解每個施工節點的製圖細節及技術要點。 每張施工圖紙均是作者多年設計施工過程中精選出的典型案例,是一本完全可落地的施工圖集。 本書還贈送全部CAD施工圖紙,掃碼即可下載,讓讀者可以更方便地學習與借鑒。
作者簡介
劉小壘,景觀設計師,從事多年的景觀設計工作,曾參與過各類設計項目,善於從實際出發,解决各種設計細節問題,對於現場實施有著豐富的經驗。
王塔娜,景觀施工圖設計師,參與大量的項目設計工作,擁有豐富的景觀施工圖設計經驗,注重施工圖紙的細節與實用性。
薑新良,景觀人,多年從事景觀管理工作,與國內外多家地產、景觀公司保持長期良好的關係,擁有景觀設計、工程、成本等鏈條式落地經驗。
劉自强,擁有多年的景觀從業經驗,良好的景觀單體設計能力。
目錄
1園路與鋪裝常用做法
瀝青路做法4
車行道路做法5
人行道路做法7
道路鋪裝樣式9
室外木平臺17
鋪裝收邊18
室外道牙21
臺階25
運動場地28
2景觀構築物常用做法
種植池32
特色花缽與底座52
雕塑58
坐凳、坐牆與矮牆61
臺階側牆71
欄杆79
水池與水岸88
園橋95
花廊117
燈具129
水槽與水缸141
室外傢俱146
3景觀施工通用做法
板材安裝154
排水與檢查井156
各種縫165


-------------------------------------------








【景觀施工圖設計實用手冊】
內容簡介
這是一本講景觀施工圖設計與繪製的實用手冊。 作者在一線都市從事景觀設計13年,結合自身在景觀設計中多年來的積累與沉澱,梳理出景觀施工圖設計中的常見問題及重難點,內容分為3篇,主要涵蓋景觀施工基本資料(磚、石材、鋼材、混凝土)、 鋪裝設計與鋪裝詳圖製圖基礎(道路、路緣石、停車位、園路)及景觀短劇設計(大門、圍牆、水景)。
本書立足於施工圖設計規範,不僅對規範概念進行詳細解讀,並從繪圖思路、設計流程和繪製方法逐一介紹,由淺入深、循序漸進,圖文並茂。 書中豐富的景觀案例解析,正確的施工圖繪製法則讓初學者從繪圖階段即可提前規避施工階段的諸多潜在問題。 通過繪圖前後的分析對比,方便具備景觀設計能力和常識的學生進行方案及施工圖深化設計。
相信這本書有助於你提升景觀施工圖繪圖能力,提高施工圖繪製效率。
作者簡介
王蔚,清華大學風景園林專業碩士,北京本然景觀設計創始人,深耕景觀設計13年,參與100多個景觀設計項目,積累豐富的施工圖繪製經驗,尤其擅長景觀手繪圖和施工圖繪製。
目錄
篇景觀工程基本資料6
第1章磚7
1.1概述7
1.2磚7
1.3灰縫8
1.4磚砌築的基本知識9
1.5磚牆的砌築10
1.6磚柱的砌築20
1.7磚牆轉角28
1.8磚牆附牆柱31
1.9磚基礎34
1.10磚牆繪製中的其他問題39
1.11清水磚牆施工圖設計示例42
第2章石材49
2.1概述49
2.2大理石49
2.3花崗岩51
2.4石材標注管道52
2.5石材的病害58
第3章鋼材61
3.1概述61
3.2型鋼66
3.3鋼筋68
第4章混凝土71
4.1概述71
4.2通用矽酸鹽水泥72
4.3骨料75
4.4砂漿81
4.5混凝土85
4.6鋼筋混凝土87
第二篇鋪裝設計與鋪裝詳圖製圖基礎92
第5章鋪裝設計93
5.1概述93
5.2鋪裝設計的主要管道93
5.3鋪裝設計示例94
第6章典型場地鋪裝詳圖繪製實例119
6.1概述119
6.2道路120
6.3路緣石137
6.4停車位147
6.5園路157
6.6鋪裝設計重點166
第三篇短劇設計176
第7章施工圖短劇設計基礎177
7.1概述177
7.2景觀施工圖的編制177
7.3建築出入口重點概述187
7.4無障礙設計231
第8章地基基礎與常見基礎形式240
8.1概述240
8.2地基土質240
8.3地基處理管道及基礎類型243
8.4景觀施工圖示例248
第9章豎向設計基礎252
9.1概述252
9.2道路豎向設計255
9.3樓梯267

高雄張**[0988***500]
12分鐘前【室內設計施工圖節點圖集+室內設計場景工藝】+【景觀節點CAD施工圖集+景觀施工圖設計實用手冊】 - 【室內設計施工圖節點圖集+室內設計場景工藝】+【景觀節點CAD施工圖集+景觀施工圖設計實用手冊】(四册,價 3050)
新竹孫**[0988***457]
12分鐘前【室內設計施工圖節點圖集+室內設計場景工藝】+【景觀節點CAD施工圖集+景觀施工圖設計實用手冊】 - 【室內設計施工圖節點圖集+室內設計場景工藝】(两册,價1850)
臺南謝**[0968***353]
11分鐘前【室內設計施工圖節點圖集+室內設計場景工藝】+【景觀節點CAD施工圖集+景觀施工圖設計實用手冊】 - 【室內設計施工圖節點圖集+室內設計場景工藝】(两册,價1850)
新北李**[0978***626]
7分鐘前【室內設計施工圖節點圖集+室內設計場景工藝】+【景觀節點CAD施工圖集+景觀施工圖設計實用手冊】 - 【室內設計施工圖節點圖集+室內設計場景工藝】+【景觀節點CAD施工圖集+景觀施工圖設計實用手冊】(四册,價 3050)
嘉義楊**[0998***345]
12分鐘前【室內設計施工圖節點圖集+室內設計場景工藝】+【景觀節點CAD施工圖集+景觀施工圖設計實用手冊】 - 【室內設計施工圖節點圖集+室內設計場景工藝】(两册,價1850)
臺北趙**[0960***310]
12分鐘前【室內設計施工圖節點圖集+室內設計場景工藝】+【景觀節點CAD施工圖集+景觀施工圖設計實用手冊】 - 【室內設計施工圖節點圖集+室內設計場景工藝】+【景觀節點CAD施工圖集+景觀施工圖設計實用手冊】(四册,價 3050)
基隆劉**[0978***629]
2分鐘前【室內設計施工圖節點圖集+室內設計場景工藝】+【景觀節點CAD施工圖集+景觀施工圖設計實用手冊】 - 【室內設計施工圖節點圖集+室內設計場景工藝】(两册,價1850)
嘉義楊**[0920***730]
25分鐘前【室內設計施工圖節點圖集+室內設計場景工藝】+【景觀節點CAD施工圖集+景觀施工圖設計實用手冊】 - 【室內設計施工圖節點圖集+室內設計場景工藝】+【景觀節點CAD施工圖集+景觀施工圖設計實用手冊】(四册,價 3050)
臺中黃**[0966***773]
2分鐘前【室內設計施工圖節點圖集+室內設計場景工藝】+【景觀節點CAD施工圖集+景觀施工圖設計實用手冊】 - 【景觀節點CAD施工圖集+景觀施工圖設計實用手冊】(两册,價1850)
嘉義楊**[0968***774]
4分鐘前【室內設計施工圖節點圖集+室內設計場景工藝】+【景觀節點CAD施工圖集+景觀施工圖設計實用手冊】 - 【室內設計施工圖節點圖集+室內設計場景工藝】(两册,價1850)
高雄趙**[0932***351]
15分鐘前【室內設計施工圖節點圖集+室內設計場景工藝】+【景觀節點CAD施工圖集+景觀施工圖設計實用手冊】 - 【室內設計施工圖節點圖集+室內設計場景工藝】+【景觀節點CAD施工圖集+景觀施工圖設計實用手冊】(四册,價 3050)
新北李**[0920***876]
5分鐘前【室內設計施工圖節點圖集+室內設計場景工藝】+【景觀節點CAD施工圖集+景觀施工圖設計實用手冊】 - 【景觀節點CAD施工圖集+景觀施工圖設計實用手冊】(两册,價1850)
新竹劉**[0946***634]
4分鐘前【室內設計施工圖節點圖集+室內設計場景工藝】+【景觀節點CAD施工圖集+景觀施工圖設計實用手冊】 - 【室內設計施工圖節點圖集+室內設計場景工藝】+【景觀節點CAD施工圖集+景觀施工圖設計實用手冊】(四册,價 3050)
基隆仲**[0956***533]
半小時前【室內設計施工圖節點圖集+室內設計場景工藝】+【景觀節點CAD施工圖集+景觀施工圖設計實用手冊】 - 【室內設計施工圖節點圖集+室內設計場景工藝】(两册,價1850)
桃園柳**[0988***464]
5分鐘前【室內設計施工圖節點圖集+室內設計場景工藝】+【景觀節點CAD施工圖集+景觀施工圖設計實用手冊】 - 【景觀節點CAD施工圖集+景觀施工圖設計實用手冊】(两册,價1850)
新北張**[0918***824]
2分鐘前【室內設計施工圖節點圖集+室內設計場景工藝】+【景觀節點CAD施工圖集+景觀施工圖設計實用手冊】 - 【室內設計施工圖節點圖集+室內設計場景工藝】+【景觀節點CAD施工圖集+景觀施工圖設計實用手冊】(四册,價 3050)
臺北鍾**[0988***569]
11分鐘前【室內設計施工圖節點圖集+室內設計場景工藝】+【景觀節點CAD施工圖集+景觀施工圖設計實用手冊】 - 【室內設計施工圖節點圖集+室內設計場景工藝】+【景觀節點CAD施工圖集+景觀施工圖設計實用手冊】(四册,價 3050)
臺南王**[0956***641]
25分鐘前【室內設計施工圖節點圖集+室內設計場景工藝】+【景觀節點CAD施工圖集+景觀施工圖設計實用手冊】 - 【室內設計施工圖節點圖集+室內設計場景工藝】(两册,價1850)
臺北仲**[0998***711]
7分鐘前【室內設計施工圖節點圖集+室內設計場景工藝】+【景觀節點CAD施工圖集+景觀施工圖設計實用手冊】 - 【景觀節點CAD施工圖集+景觀施工圖設計實用手冊】(两册,價1850)
嘉義楊**[0966***927]
5分鐘前【室內設計施工圖節點圖集+室內設計場景工藝】+【景觀節點CAD施工圖集+景觀施工圖設計實用手冊】 - 【景觀節點CAD施工圖集+景觀施工圖設計實用手冊】(两册,價1850)
新北楊**[0960***494]
4分鐘前【室內設計施工圖節點圖集+室內設計場景工藝】+【景觀節點CAD施工圖集+景觀施工圖設計實用手冊】 - 【景觀節點CAD施工圖集+景觀施工圖設計實用手冊】(两册,價1850)
臺南方**[0978***176]
11分鐘前【室內設計施工圖節點圖集+室內設計場景工藝】+【景觀節點CAD施工圖集+景觀施工圖設計實用手冊】 - 【室內設計施工圖節點圖集+室內設計場景工藝】(两册,價1850)
桃園孫**[0938***199]
7分鐘前【室內設計施工圖節點圖集+室內設計場景工藝】+【景觀節點CAD施工圖集+景觀施工圖設計實用手冊】 - 【室內設計施工圖節點圖集+室內設計場景工藝】(两册,價1850)
新北李**[0986***223]
12分鐘前【室內設計施工圖節點圖集+室內設計場景工藝】+【景觀節點CAD施工圖集+景觀施工圖設計實用手冊】 - 【景觀節點CAD施工圖集+景觀施工圖設計實用手冊】(两册,價1850)
新北李**[0978***425]
4分鐘前【室內設計施工圖節點圖集+室內設計場景工藝】+【景觀節點CAD施工圖集+景觀施工圖設計實用手冊】 - 【室內設計施工圖節點圖集+室內設計場景工藝】+【景觀節點CAD施工圖集+景觀施工圖設計實用手冊】(四册,價 3050)
基隆陳**[0938***825]
12分鐘前【室內設計施工圖節點圖集+室內設計場景工藝】+【景觀節點CAD施工圖集+景觀施工圖設計實用手冊】 - 【室內設計施工圖節點圖集+室內設計場景工藝】+【景觀節點CAD施工圖集+景觀施工圖設計實用手冊】(四册,價 3050)
新竹仲**[0960***732]
2分鐘前【室內設計施工圖節點圖集+室內設計場景工藝】+【景觀節點CAD施工圖集+景觀施工圖設計實用手冊】 - 【室內設計施工圖節點圖集+室內設計場景工藝】(两册,價1850)
基隆鄭**[0938***903]
15分鐘前【室內設計施工圖節點圖集+室內設計場景工藝】+【景觀節點CAD施工圖集+景觀施工圖設計實用手冊】 - 【室內設計施工圖節點圖集+室內設計場景工藝】+【景觀節點CAD施工圖集+景觀施工圖設計實用手冊】(四册,價 3050)
臺南仲**[0988***384]
20分鐘前【室內設計施工圖節點圖集+室內設計場景工藝】+【景觀節點CAD施工圖集+景觀施工圖設計實用手冊】 - 【室內設計施工圖節點圖集+室內設計場景工藝】(两册,價1850)
嘉義周**[0951***601]
20分鐘前【室內設計施工圖節點圖集+室內設計場景工藝】+【景觀節點CAD施工圖集+景觀施工圖設計實用手冊】 - 【室內設計施工圖節點圖集+室內設計場景工藝】+【景觀節點CAD施工圖集+景觀施工圖設計實用手冊】(四册,價 3050)
臺北孫**[0998***728]
7分鐘前【室內設計施工圖節點圖集+室內設計場景工藝】+【景觀節點CAD施工圖集+景觀施工圖設計實用手冊】 - 【室內設計施工圖節點圖集+室內設計場景工藝】(两册,價1850)
高雄柳**[0946***510]
25分鐘前【室內設計施工圖節點圖集+室內設計場景工藝】+【景觀節點CAD施工圖集+景觀施工圖設計實用手冊】 - 【室內設計施工圖節點圖集+室內設計場景工藝】(两册,價1850)
臺中楊**[0946***748]
11分鐘前【室內設計施工圖節點圖集+室內設計場景工藝】+【景觀節點CAD施工圖集+景觀施工圖設計實用手冊】 - 【室內設計施工圖節點圖集+室內設計場景工藝】(两册,價1850)
基隆張**[0920***438]
4分鐘前【室內設計施工圖節點圖集+室內設計場景工藝】+【景觀節點CAD施工圖集+景觀施工圖設計實用手冊】 - 【室內設計施工圖節點圖集+室內設計場景工藝】(两册,價1850)
桃園錢**[0938***156]
11分鐘前【室內設計施工圖節點圖集+室內設計場景工藝】+【景觀節點CAD施工圖集+景觀施工圖設計實用手冊】 - 【景觀節點CAD施工圖集+景觀施工圖設計實用手冊】(两册,價1850)
高雄陳**[0920***435]
5分鐘前【室內設計施工圖節點圖集+室內設計場景工藝】+【景觀節點CAD施工圖集+景觀施工圖設計實用手冊】 - 【景觀節點CAD施工圖集+景觀施工圖設計實用手冊】(两册,價1850)
嘉義符**[0960***308]
11分鐘前【室內設計施工圖節點圖集+室內設計場景工藝】+【景觀節點CAD施工圖集+景觀施工圖設計實用手冊】 - 【室內設計施工圖節點圖集+室內設計場景工藝】+【景觀節點CAD施工圖集+景觀施工圖設計實用手冊】(四册,價 3050)
高雄方**[0938***448]
半小時前【室內設計施工圖節點圖集+室內設計場景工藝】+【景觀節點CAD施工圖集+景觀施工圖設計實用手冊】 - 【室內設計施工圖節點圖集+室內設計場景工藝】+【景觀節點CAD施工圖集+景觀施工圖設計實用手冊】(四册,價 3050)
嘉義仲**[0968***117]
25分鐘前【室內設計施工圖節點圖集+室內設計場景工藝】+【景觀節點CAD施工圖集+景觀施工圖設計實用手冊】 - 【室內設計施工圖節點圖集+室內設計場景工藝】+【景觀節點CAD施工圖集+景觀施工圖設計實用手冊】(四册,價 3050)
新北黃**[0938***712]
20分鐘前【室內設計施工圖節點圖集+室內設計場景工藝】+【景觀節點CAD施工圖集+景觀施工圖設計實用手冊】 - 【室內設計施工圖節點圖集+室內設計場景工藝】+【景觀節點CAD施工圖集+景觀施工圖設計實用手冊】(四册,價 3050)
基隆黃**[0966***571]
半小時前【室內設計施工圖節點圖集+室內設計場景工藝】+【景觀節點CAD施工圖集+景觀施工圖設計實用手冊】 - 【室內設計施工圖節點圖集+室內設計場景工藝】(两册,價1850)
臺南錢**[0956***975]
5分鐘前【室內設計施工圖節點圖集+室內設計場景工藝】+【景觀節點CAD施工圖集+景觀施工圖設計實用手冊】 - 【景觀節點CAD施工圖集+景觀施工圖設計實用手冊】(两册,價1850)
臺中吳**[0988***290]
20分鐘前【室內設計施工圖節點圖集+室內設計場景工藝】+【景觀節點CAD施工圖集+景觀施工圖設計實用手冊】 - 【室內設計施工圖節點圖集+室內設計場景工藝】(两册,價1850)
新北仲**[0938***299]
20分鐘前【室內設計施工圖節點圖集+室內設計場景工藝】+【景觀節點CAD施工圖集+景觀施工圖設計實用手冊】 - 【景觀節點CAD施工圖集+景觀施工圖設計實用手冊】(两册,價1850)
新竹柳**[0966***620]
20分鐘前【室內設計施工圖節點圖集+室內設計場景工藝】+【景觀節點CAD施工圖集+景觀施工圖設計實用手冊】 - 【室內設計施工圖節點圖集+室內設計場景工藝】(两册,價1850)
基隆劉**[0998***217]
4分鐘前【室內設計施工圖節點圖集+室內設計場景工藝】+【景觀節點CAD施工圖集+景觀施工圖設計實用手冊】 - 【室內設計施工圖節點圖集+室內設計場景工藝】+【景觀節點CAD施工圖集+景觀施工圖設計實用手冊】(四册,價 3050)
臺中朱**[0956***457]
半小時前【室內設計施工圖節點圖集+室內設計場景工藝】+【景觀節點CAD施工圖集+景觀施工圖設計實用手冊】 - 【室內設計施工圖節點圖集+室內設計場景工藝】(两册,價1850)
新北朱**[0960***338]
半小時前【室內設計施工圖節點圖集+室內設計場景工藝】+【景觀節點CAD施工圖集+景觀施工圖設計實用手冊】 - 【景觀節點CAD施工圖集+景觀施工圖設計實用手冊】(两册,價1850)
高雄鍾**[0932***545]
2分鐘前【室內設計施工圖節點圖集+室內設計場景工藝】+【景觀節點CAD施工圖集+景觀施工圖設計實用手冊】 - 【室內設計施工圖節點圖集+室內設計場景工藝】+【景觀節點CAD施工圖集+景觀施工圖設計實用手冊】(四册,價 3050)
基隆柳**[0978***275]
20分鐘前【室內設計施工圖節點圖集+室內設計場景工藝】+【景觀節點CAD施工圖集+景觀施工圖設計實用手冊】 - 【室內設計施工圖節點圖集+室內設計場景工藝】+【景觀節點CAD施工圖集+景觀施工圖設計實用手冊】(四册,價 3050)

































